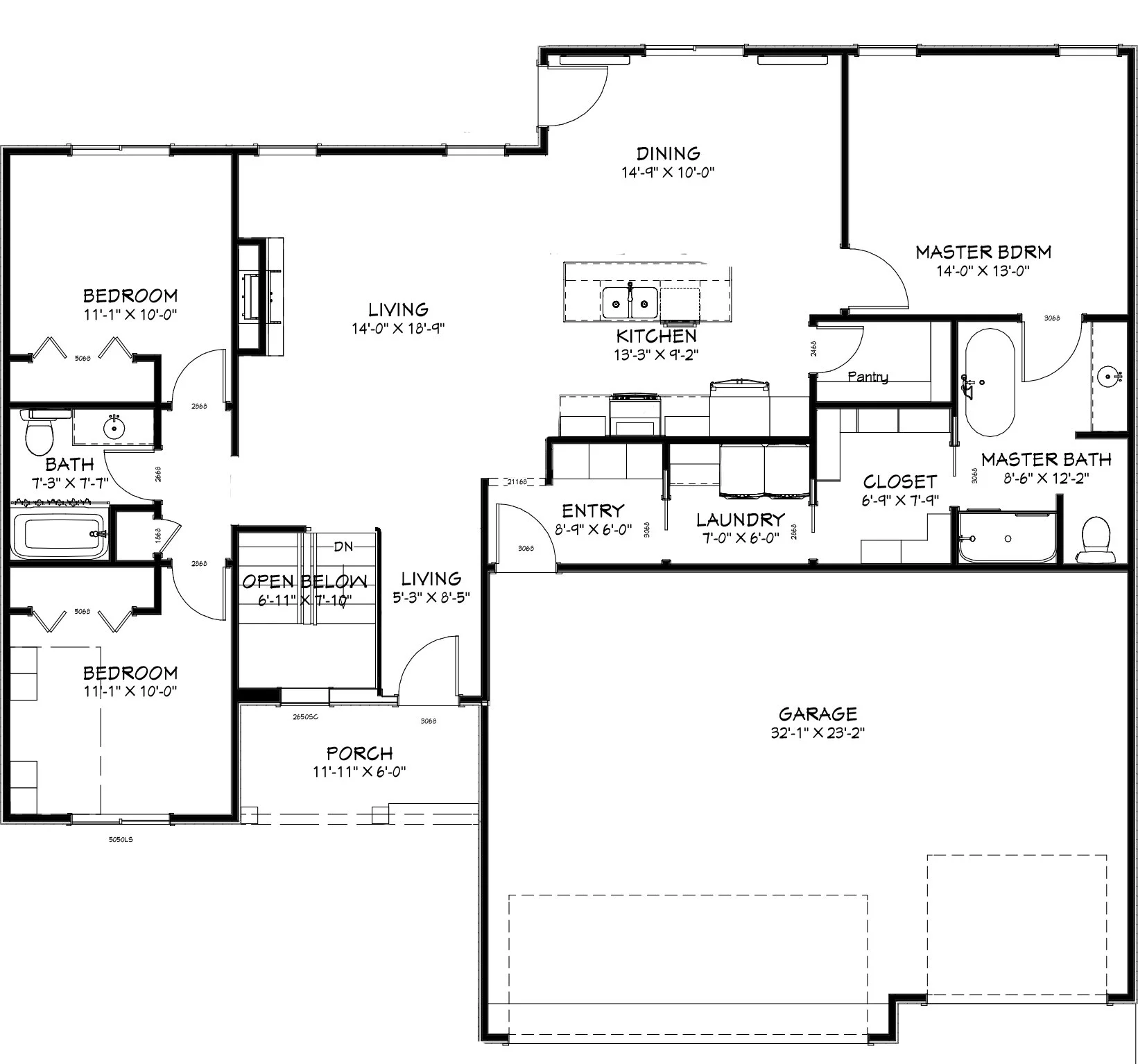
The Giuli
Plan Includes
1,603 sq. ft.
5 Bedrooms
3 Bath
3 Stall Garage
This chic modern home has it all! Five bedrooms, three baths, main floor laundry and generous living room. Complete with a finished basement including large family room, kitchen and 3 car garage, what’s not to love!?
