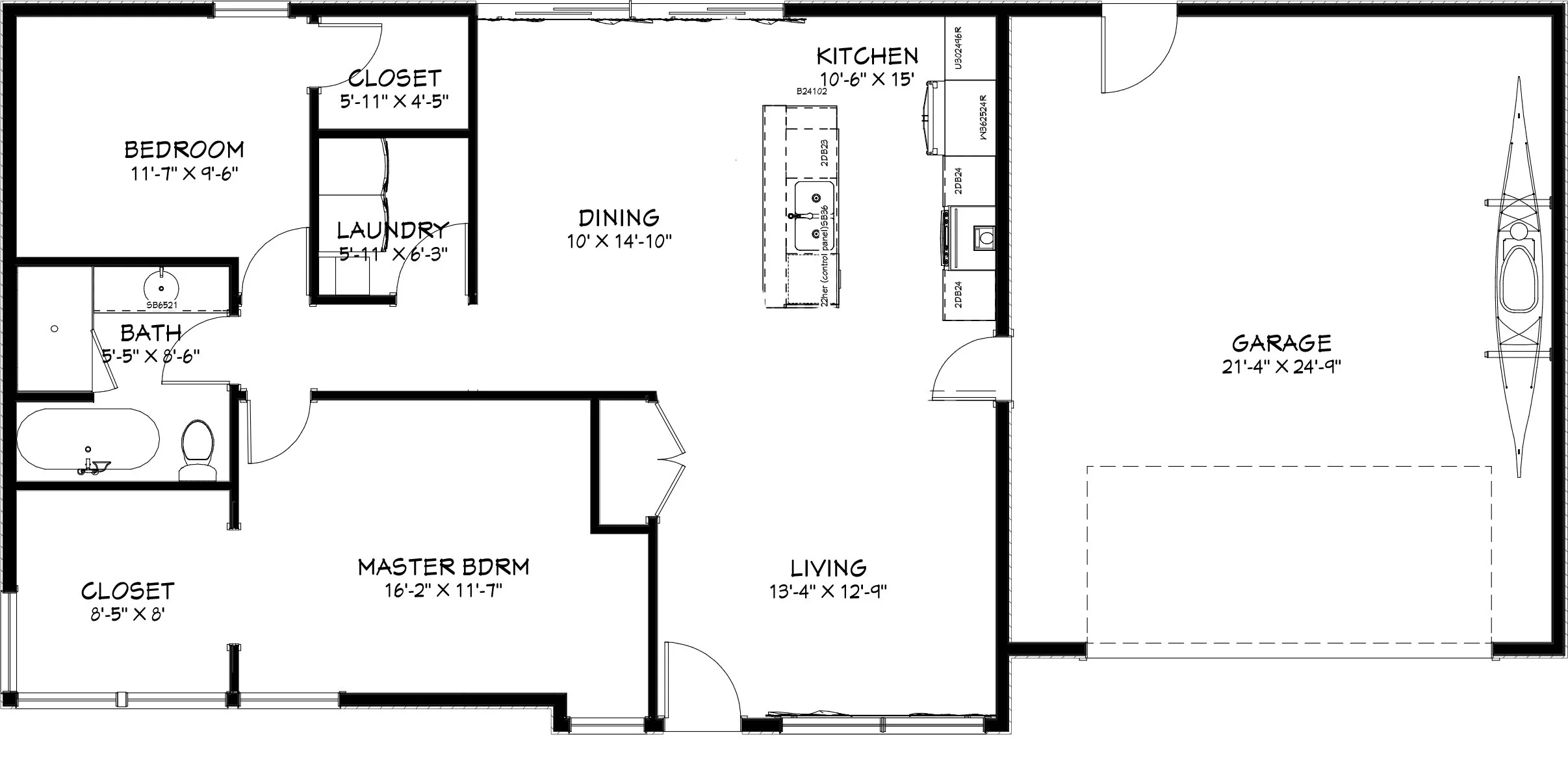
The Halstadt
Plan Includes
1,120 sq. ft.
2 Bedrooms
1 Bath
2 Stall Garage
This fun, modern home with a retro flair is perfect for those just starting out. All the space where you need it, none where you don’t, and style for miles! 2 bedrooms, 1 bath and luxurious living in a compact footprint.
